“Its like walking through a forest – the columns are the trees, and the branches are the guitars.”
Opened in 2025, we helped the owners of Mill River Music expand their brick workshop into a mecca for guitarists and other musicians alike.
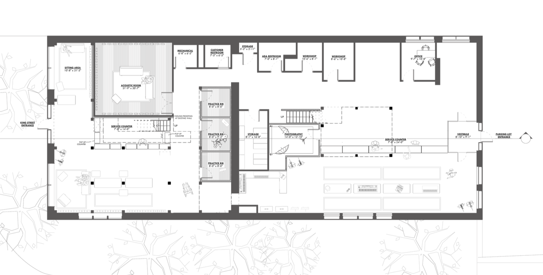
The existing brick building at 135 King Street dates from the early 1900s, selling Packard automobiles in the first part of the 20th century. The large openings facing Route 5 are original, as was the terrazzo flooring we found during demo. We worked with the owners to retain as much original character in the building (including the exposed steel structure) as possible during our design process and construction.
We added timber frame mezzanines throughout with black steel elements – hangers, brackets, railings and stairs – increasing the interior usable space by 20%. Made from eastern white pine, the interior frame adds warmth, complexity and tone to the interior –while creating retail opportunities for the business.
Year of project: 2024
Location: Northampton, MA
Photos: Andrew Held Photography

